85440 Saint Hilaire La Foret
Vente
239 500 €
Maison – Saint Hilaire La Foret (85440) – 239500€
Situé entre Talmont Saint Hilaire et Jard sur Mer, la commune de Saint Hilaire la Forêt offre le calme, à seulement 10 minutes de l’océan atlantique.
Ce lotissement "Le Fief de la Vineuse" comporte de belles surfaces de parcelles dans un secteur agréable.
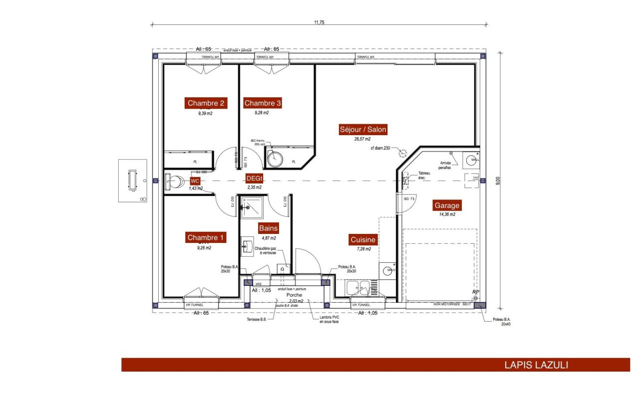
Sur ce terrain viabilisé de 432 m2, orienté sud, nous vous proposons le modèle Lapis Lazuli, maison de 71.17 m2, composée de 3 chambres avec garage de 14.65 m2.
Plans modifiables selon votre projet !
Terrain + maison clés en main à 239 500 €*
(Raccordements compris)
* Sous réserve de l’étude de sol
L’entreprise Milcendeau n’est pas mandatée pour réaliser la vente du terrain.
Diagnostic de Performance Energétique
Maison – Coex (85220) – 279000€ Située à 15 km…
279 000 €
Agréable maison avec porche offrant une belle pièce de vie…